







| 产品名称:高温热压电炉 | 型号:热压炉,热压烧结炉,高温热压炉 | 产品特点:广泛用于陶瓷、冶金、电子、玻璃、化工、机械、耐火材料、新材料开发、特种材料、建材等领域的生产及实验。 |
==技术指标==
温度 项目 | 1000/1200℃ |
电压AC | 220V/380V |
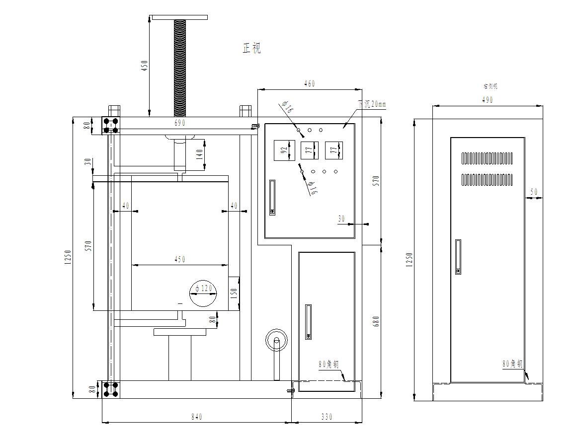
加热区尺寸 | 直径200*400mm |
最高工作温度 | 1250℃ |
长期工作温度 | 1200℃ |
控温精度 | ±1℃ |
炉内温场均匀度 | ±1℃(根据加热室大小而定) 要求高时可采用多点控温 |
测温元件及测温范围 | 铂铑 S 测温范围0-1700℃ |
编程曲线段数 | 一组50段,二组22段,三组8段 |
升温速率 | 1℃/h至40℃/min可调 |
发热元件 | 硅碳棒 |
发热元件安装位置 | 垂直安装于炉膛两侧或者四周 |
耐火材料 | 高纯氧化铝含锆纤维板 |
压力 | 3-60吨,定制 |
升降 | 电动液压升降 |
磨具 | 2520钢/氮化硅 |
压力调节 | 电接点压力表,根据客户要求可定制数显 |
最大行程 | 50mm |
磨具最大直径 | 200mm |
冷却结构 | 双层炉壳,风冷 |
炉体温度 | ≤45度 |
计算机接口 | RS485 RS232 USB |
保修范围及期限 | 电炉免费保修一年,发热元件不保修(三个月内自然损坏免费更换) |
随机备件 | 发热原件两支、棒具两套,说明书一份 ,合格证一份,坩埚钳一把,水冷隔热块一个,高温手套一副 |
以60吨为例的压力对应吨位表:
实际压力(tf) | 8.8 | 17.6 | 26.4 | 35.2 | 44 | 52.8 | 60 |
压力表值(Mpa) | 5 | 10 | 15 | 20 | 25 | 30 | 34 |
汇聚国内外前沿技术,及研发实力
Convergence of domestic and international cutting-edge technology, and R & D strength 可选配件